PN公稱通徑
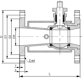
DN外形及連接尺寸/mmLDD1D2b-fZ-?d161514095654516-24-1420140105755818-24-1425160115856818-24-14321651401007818-24-18401801501108818-24-185020016512510218-24-186522018514512218-28-188025020016013820-28-1810028022018015820-28-1812532025021018822-28-1815036028524021222-28-2220040034029526824-212-22表中未列出的其他規格尺寸,請咨詢汗越閥門技術部!

氣動保溫球閥結構圖

氣動保溫球閥

如果你需訂購我廠保溫球閥產品,咨詢時煩請說明公稱壓力、公稱通徑、閥體和內件材料、使用介質、工作溫度、保溫加熱流體入口、出口及排泄口連接形式等,本產品閥體結構型式有一片式和二片式兩種。

上一條:電動保溫球閥

下一條:夾套球閥